NewsLocal NewsIn Your NeighborhoodBakersfield

Actions

East Niles Water District addresses ongoing water quality issues in southeast Bakersfield

East Niles Water District addresses ongoing water quality issues in southeast Bakersfield
Posted

BAKERSFIELD, Calif. (KERO) — In rural areas southeast of Bakersfield, water issues continue to be a major concern for residents.

  • Tim Ruiz discusses efforts to consolidate five smaller water districts with East Niles Water District.
  • Victory Mutual Water District has ongoing water quality issues, including high nitrates and arsenic.
  • Residents often face water outages and contamination, leading some to rely on bottled water.
  • Consolidation aims to improve infrastructure and ensure safe drinking water through new facilities.
  • One district, Oasis Property Owners Association, has not yet agreed to the consolidation plan.

BROADCAST TRANSCRIPT:
Sergio Barrera has been living on Dorthy Street for 30 years, but he's had to deal with water quality issues no one wants to have, such as contaminated water.

Sergio Barrera says, "They get high nitrates in the water and things like that in the system, and I mean I get water from Sparkletts so I don't really drink the water."

On Thursday, residents in the nearby Victory Mutual Company say they were left without water most of the day because of a broken water pipe. The area is isolated; it's mainly rural.

A common sight is seeing cows, horses, and other animals on people's property. The infrastructure is old, and with the increase in truck traffic, it's taken a toll on the water system.

Barrera explains, "The vibrations of those trucks sometimes cause these pipes, old pipes to loosen up and burst."

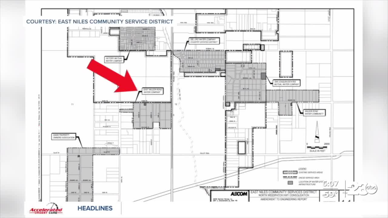
Tim Ruiz is the general manager of East Niles community service district and says the state approved a grant to consolidate six water systems with East Niles.

Those six systems are: Oasis Property Owners Association, East Wilson Road Water Company, Victory Mutual Water Company, Del Oro Water Company, Country Estates District, San Joaquin Estates Mutual Water Company, and Wilson Road Water Community, all located between South Fairfax and Weed Patch Highway.

Ruiz states, "There's been some increase levels of nitrate and I think there's also some arsenic in some of the wells out there." By consolidating, this means constructing new facilities and distribution systems such as fire hydrants, valves, meters, and connecting them to East Niles water system. But what does this mean for residents in the area?

Ruiz says, "We have the ability to treat the water whether it's arsenic or 123 TCP if we encounter it with this new well." This means they can ensure that the maximum water contaminant levels for arsenic and 123 TCP are met, so water that comes from the pipe is at safe drinkable levels.

So residents like Barrera can worry less when his granddaughter and family visit and hopes a solution comes soon.

However, one company out of six, Oasis Property Owners Association, still hasn't signed to be part of this consolidation plan.

Barrera adds, "Everybody needs good clean water to drink, and if we can't have that, then something needs to be done about it." Residents out here tell me they just want solutions to have healthy and safe drinking water; just when that might be, nobody can say.


Stay in Touch with Us Anytime, Anywhere:

,

Weather

Daily Forecast

View Hourly Forecast

Day

Conditions

HI / LO

Precip

Tuesday

12/16/2025

Clouds Early/Clearing Late

-° / 42°

7%

Wednesday

12/17/2025

Partly Cloudy

55° / 47°

9%

Thursday

12/18/2025

Partly Cloudy

56° / 44°

8%

Friday

12/19/2025

Mostly Clear

55° / 46°

8%

Saturday

12/20/2025

Partly Cloudy

57° / 49°

5%

Sunday

12/21/2025

Cloudy

61° / 50°

10%

Monday

12/22/2025

Mostly Cloudy

58° / 48°

5%

Tuesday

12/23/2025

Cloudy

59° / 53°

24%